Nové byty v Rychnově nad Kněžnou
Umístění bytu
pohledy_c_patro_5_byt_2
Výběr bytu v 5. NP
Byt C-5-1 Byt C-5-2 Byt C-5-3 Byt C-5-4
Informace o bytu
Kód bytu
1903/26

Ceny

Sklepní kóje
C-S-15
Garážové stání
C-P-60
Venkovní stání

Chodba
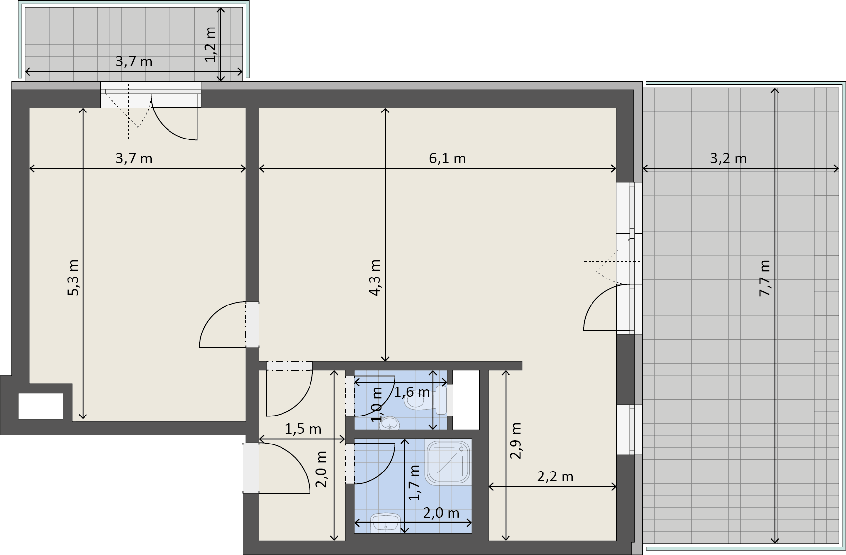
4.4 m2
WC
1.6 m2
Koupelna
3.65 m2
Obývací pokoj + KK
33.9 m2
Pokoj
19.6 m2
Balkon
4.8 m2
Terasa
25.7 m2

Vnitřní užitná plocha
63.15 m2
Podlahová plocha
67.4 m2
Celková plocha
97.9 m2
Zajímá Vás tento byt?

Byt C-5-2

Kód bytu: 1903/26 2+KK Prodaný


budova_c_patro_5_byt_2
budova_c_patro_5_byt_2_rozmery

Orientace


Byt se nachází v posledním, pátém nadzemním podlaží bezbariérového bytového domu „Javornická“. Součástí bytové jednotky je prostorný balkón a terasa. Vytápění je zajištěno dálkové horkovodní s vlastní regulací a měřením pro každou bytovou jednotku. Standardní vybavení bytů obsahuje vstupní bezpečnostní dveře, vnitřní dveře s povrchovou úpravou (fólie) s kvalitním kováním, plovoucí (lamino) podlahy, keramické obklady, dlažby a sanitární keramiku. . K bytové jednotce si můžete dokoupit venkovní stání, které se nachází před budovou, nebo garážové stání a sklepní kóji umístěné v prvním podzemním podlaží budovy. Více informací o veškerém standardním vybavení nových bytů Rezidence Javornická naleznete v sekci standardy v hlavní nabídce.


Vysvětlení pojmů:

    Vnitřní užitná plocha bytu:
    • Užitnou plochou bytu v jednotce tvoří půdorysná plocha všech místností bytu, bez půdorysné plochy všech svislých nosných i nenosných konstrukcí uvnitř bytu, jako jsou stěny, sloupy, pilíře, komíny a obdobné svislé konstrukce.
    Podlahová plocha bytu:
    • Podlahovou plochu bytu v jednotce tvoří půdorysná plocha všech místností bytu, včetně půdorysné plochy všech svislých nosných i nenosných konstrukcí uvnitř bytu, jako jsou stěny, sloupy, pilíře, komíny a obdobné svislé konstrukce (nařízení vlády č. 366/2013 Sb.).
    Celková plocha bytu
    • Je součtem podlahové plochy povýšené o balkon/terasy/zahrady/lodžie přímo přístupné z bytu. Tyto plochy jsou určené k výhradnímu užívání vlastníka bytové jednotky.
    Upozornění: Rozměry jednotlivých místností jsou orientační. Vyobrazené zařízení v plánech bytu (nábytek, kuchyňská linka, el. spotřebiče atd.) není součástí dodávky. Rozsah dodávky je specifikován ve standardu. Investor si vyhrazuje právo na drobné úpravy.


    Smluvní partner

    Logo HANÁK