Nové byty v Rychnově nad Kněžnou
Umístění bytu
pohledy_f_patro_5_byt_1
Výběr bytu v 5. NP
Byt F-5-1 Byt F-5-3 Byt F-5-4 Byt F-5-5
Informace o bytu
Kód bytu
1919/25

Ceny

Bytová jednotka
4 664 000 Kč
Sklepní kóje
S111
114 000 Kč
Garážové stání
P52
379 000 Kč
Venkovní stání

Chodba
10.27 m2
Obývací pokoj + KK
20.47 m2
Pokoj
12.08 m2
Koupelna + WC
6.43 m2
Terasa
27.72 m2

Vnitřní užitná plocha
49.25 m2
Podlahová plocha
52.19 m2
Celková plocha
79.91 m2
Nabídka financování

Cena nemovitosti

Doba splácení

Vlastní zdroje


Orientační výše splátky

15 715 Kč

Pro více informací volejte
778 782 855

Zajímá Vás tento byt?

Byt F-5-1

Kód bytu: 1919/25 2+KK Volný


budova_f_patro_5_byt_1
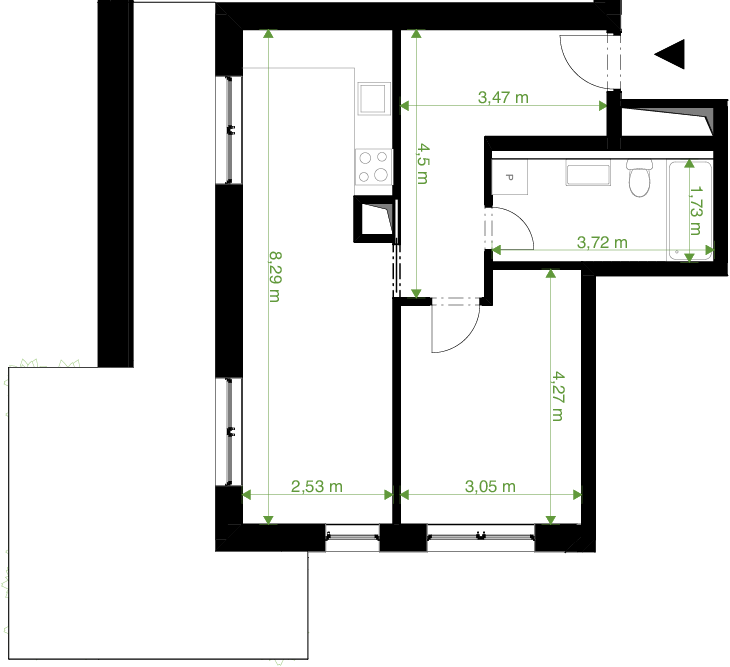
budova_f_patro_5_byt_1_rozmery

Orientace


Tento byt o dispozici 2+KK se nachází v pátém nadzemním podlaží nově budovaného moderního bytového domu. Byt disponuje prostornou terasou o velikosti 27,72 m², jež nabízí ideální prostor pro odpočinek na čerstvém vzduchu i na drobné zahradničení. Podlahová plocha bytu činí 52,19 m² a je prakticky členěna na chodbu (10,27 m²), obývací pokoj s kuchyňským koutem (20,47 m²), ložnici (12,08 m²) a koupelnu s WC (6,43 m²). Díky efektivní dispozici poskytuje byt dostatek soukromí i pohodlí. Příjemné je propojení obývacího pokoje a kuchyně s balkonem, což umocňuje pocit prostoru a propojení s exteriérem. Neopomenuli jsme vybavit byty teplovodním podlahovým vytápěním, které je umístěno v každé místnosti a zajišťuje tepelný komfort s nižšími náklady. Jako příjemný bonus bude podlahové vytápění vyhříváno teplou vodou ze zásobníků, které zdarma ohřeje FVE na střeše bytového domu. Bytová jednotka je vhodná jak pro jednotlivce či páry, tak i pro menší rodinu. Celková plocha nemovitosti činí 79,91 m². K bytu náleží také sklepní kóje a možnost výběru garážového či venkovního stání.


Vysvětlení pojmů:

    Vnitřní užitná plocha bytu:
    • Užitnou plochou bytu v jednotce tvoří půdorysná plocha všech místností bytu, bez půdorysné plochy všech svislých nosných i nenosných konstrukcí uvnitř bytu, jako jsou stěny, sloupy, pilíře, komíny a obdobné svislé konstrukce.
    Podlahová plocha bytu:
    • Podlahovou plochu bytu v jednotce tvoří půdorysná plocha všech místností bytu, včetně půdorysné plochy všech svislých nosných i nenosných konstrukcí uvnitř bytu, jako jsou stěny, sloupy, pilíře, komíny a obdobné svislé konstrukce (nařízení vlády č. 366/2013 Sb.).
    Celková plocha bytu
    • Je součtem podlahové plochy povýšené o balkon/terasy/zahrady/lodžie přímo přístupné z bytu. Tyto plochy jsou určené k výhradnímu užívání vlastníka bytové jednotky.
    Upozornění: Rozměry jednotlivých místností jsou orientační. Vyobrazené zařízení v plánech bytu (nábytek, kuchyňská linka, el. spotřebiče atd.) není součástí dodávky. Rozsah dodávky je specifikován ve standardu. Investor si vyhrazuje právo na drobné úpravy.


    Smluvní partner

    Logo HANÁK