Nové byty v Rychnově nad Kněžnou
Umístění bytu
pohledy_h_patro_2_byt_3
Výběr bytu v 2. NP
Byt H-2-1 Byt H-2-2 Byt H-2-3 Byt H-2-4 Byt H-2-5 Byt H-2-6 Byt H-2-7 Byt H-2-8 Byt H-2-9 Byt H-2-10
Informace o bytu
Kód bytu
1917/13

Ceny

Sklepní kóje
S33
Garážové stání
P06
Venkovní stání

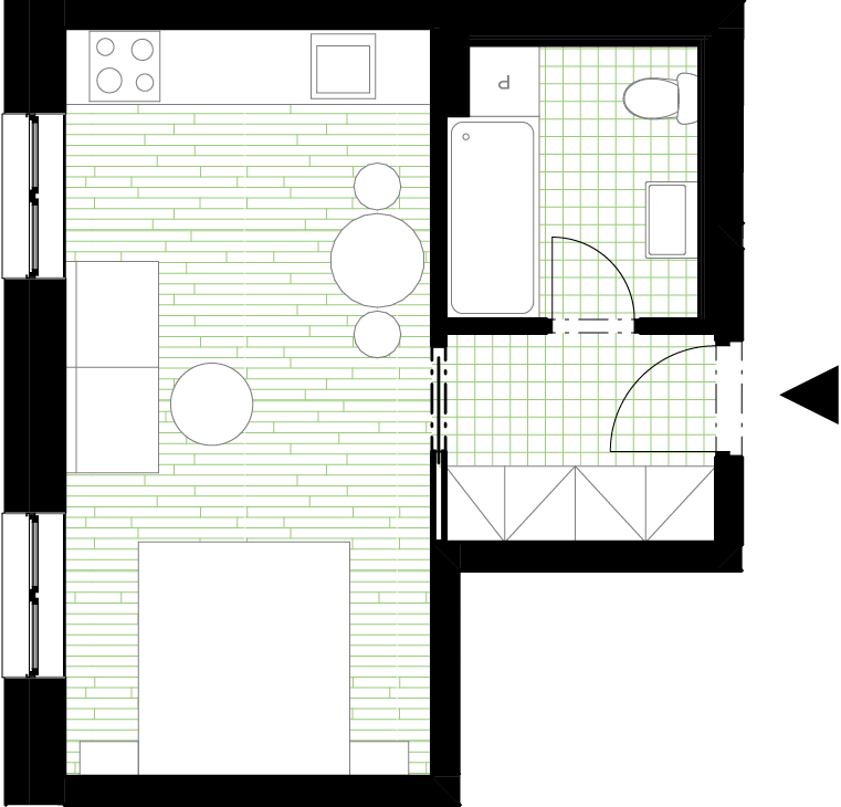
Chodba
4.22 m2
Obývací pokoj + KK
19.95 m2
Koupelna + WC
5.02 m2

Vnitřní užitná plocha
29.19 m2
Podlahová plocha
31.14 m2
Celková plocha
31.14 m2
Zajímá Vás tento byt?

Byt H-2-3

Kód bytu: 1917/13 1+KK (1,5KK) Prodaný


budova_h_patro_2_byt_3
budova_h_patro_2_byt_3_rozmery

Orientace



Vysvětlení pojmů:

    Vnitřní užitná plocha bytu:
    • Užitnou plochou bytu v jednotce tvoří půdorysná plocha všech místností bytu, bez půdorysné plochy všech svislých nosných i nenosných konstrukcí uvnitř bytu, jako jsou stěny, sloupy, pilíře, komíny a obdobné svislé konstrukce.
    Podlahová plocha bytu:
    • Podlahovou plochu bytu v jednotce tvoří půdorysná plocha všech místností bytu, včetně půdorysné plochy všech svislých nosných i nenosných konstrukcí uvnitř bytu, jako jsou stěny, sloupy, pilíře, komíny a obdobné svislé konstrukce (nařízení vlády č. 366/2013 Sb.).
    Celková plocha bytu
    • Je součtem podlahové plochy povýšené o balkon/terasy/zahrady/lodžie přímo přístupné z bytu. Tyto plochy jsou určené k výhradnímu užívání vlastníka bytové jednotky.
    Upozornění: Rozměry jednotlivých místností jsou orientační. Vyobrazené zařízení v plánech bytu (nábytek, kuchyňská linka, el. spotřebiče atd.) není součástí dodávky. Rozsah dodávky je specifikován ve standardu. Investor si vyhrazuje právo na drobné úpravy.


    Smluvní partner

    Logo HANÁK